Architekten-Doppelhaushälfte in Sasel, im Grünen, am Wasser
22393 Hamburg / Sasel, Doppelhaushälfte zum Kauf
Referenz
Dieses Objekt wurde bereits erfolgreich vermittelt.
Objektbeschreibung
Beschreibung
Diese großzügige Doppelhaushälfte wurde im Jahre ca. 1974 erbaut und verfügt über 4 Zimmer (3 Schlafzimmer + offener Wohn- und Essbereich), welche sich auf ca. 143 m² Wohnfläche aufteilen.
Sie betreten das Haus über den Windfang mit angrenzendem Gäste-WC und Diele.
Von hieraus gelangen Sie in die Küche, sowie in den großzügigen Wohn- und Essbereich. Im Wohn- und Essbereich befinden sich bodentiefe Fensterelemente, welche den Blick über die Südwest-Terrasse bis in den Vorgarten ermöglichen.
Im Sommer wird die Südwest-Terrasse zum zweiten Wohnzimmer. Wind und Blick geschützt lässt sich hier die Sonne genießen und Sie haben jederzeit den Überblick über Ihren Garten.
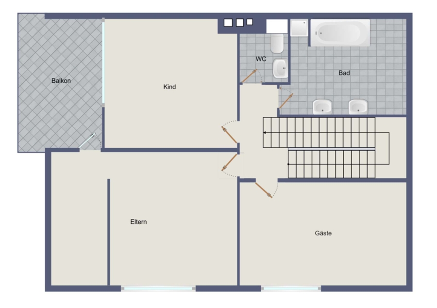
Die Holz-Treppe führt Sie in das Dachgeschoss des Hauses, welche durch die offene Bauweise teilweise eine Deckenhöhe von seltenen ca. 5,75 m bietet. Hier befinden sich drei gut geschnittene und individuell nutzbare Zimmer, von dem zwei einen Zugang zu dem Balkon aufweisen. Zudem befindet sich auf dieser Ebene ein Badezimmer mit angrenzendem WC.
Weiter führt Sie die Treppe auf den Spitzboden des Hauses. Hier erwartet Sie der Spitzboden, welcher ausgebaut zusätzlich Wohnfläche ergänzen würde. Der Spitzboden bietet eine Raumhöhe von ca. 3,9 m auf einer Grundfläche von ca. 59 m².
Zudem bietet diese Doppelhaushälfte einen beheizten Vollkeller mit viel Fläche.
Neben dem Heizungsraum befinden sich hier zwei weitere, großzügige Räume, sowie ein Abstellraum. Ebenfalls gelangt man durch den Keller in die Tiefgarage, welche einem bei jeder Wetterlage einen trockenen Ein- und Ausstieg ins Auto ermöglicht.
Abgerundet wird dieses Angebot durch, für eine Doppelhaushälfte seltene Grundstückgröße, von ca. 942 m². Zudem besteht ein kostenfreies Nutzungsrecht für weitere angrenzende ca. 270 m². Somit umfasst die zu nutzende Fläche, ca. 1212 m². Wen das noch nicht überzeugt hat, besticht das Grundstück mit der angrenzenden Saselbek. Idyllischer geht es kaum.
Ausstattung
- Doppelhaushälfte in Sasel
- Bezugsfrei nach Absprache
- Verkehrsberuhigte Straße (30er-Zone)
- Baujahr ca. 1974
- Wohnfläche ca. 143 m²
- Nutzfläche ca. 123 m²
- Grundstücksgröße von ca. 942 m² (+ ca. 270 m² Nutzungsrecht)
- 4 Zimmer (3 Schlafzimmer + Offener Wohn- und Essbereich)
- Großzügiger und heller Wohnbereich mit z. T. bodentiefen Fenstern
- Kamin im Wohnzimmer
- Die Böden sind hauptsächlich mit hochwertigen Fliesen und Parkett ausgestattet
- Wenige Dachschrägen im Dachgeschoss
- Gäste-WC im Erd- und ein Vollbad im Dachgeschoss
- Das Haus ist vollständig unterkellert – viel Stellfläche – Beheizt + Außenzugang
- Der Keller bietet eine angenehme Deckenhöhe von ca. 2,2 m
- ca. 2018 wurde eine moderne Brennwerttherme installiert
- Ausbaufähiger Spitzboden mit einer Deckenhöhe von ca. 3,9 m und einer Grundfläche von ca. 59 m²
- ca. 2017 wurde das Dach saniert
- Große Terrasse, sowie ein Balkon, beides in südwestlicher Ausrichtung
- Tiefgarage unter dem Haus, welche durch den Keller erreichbar ist
- Die Saselbek fließt angrenzend an das Grundstück
.
Sonstiges
Allgemeine Geschäftsbedingungen
1. Maklervertrag: Ein Maklervertrag kommt durch Inanspruchnahme unserer Dienstleistung zustande.
2. Weitergabe: Die von uns ausgehändigten Unterlagen, Objektinformationen, Pläne etc. dürfen nicht an Dritte weitergegeben werden. Ausnahme besteht nur durch eine schriftliche Genehmigung von der Firma Hansen & Hansen Immobilien Kontor.
3. Objektinformationen: Alle Objektinformationen erhalten wir durch Dritte. Wir übernehmen daher keine Haftung für die Richtigkeit und Vollständigkeit der Angaben. Dem Kunden obliegt eine Prüfung auf Richtigkeit und Vollständigkeit der Objektinformationen selbstständig. Alle Immobilienangebote sind freibleibend und vorbehaltlich Irrtümern, Zwischenverkauf und -vermietung oder sonstiger Zwischenverwertung.
4. Interessenten: Interessenten, die von der Firma Hansen & Hansen Immobilien Kontor Daten über ein von uns betreutes Objekt erhalten haben und sich direkt mit unserem Kunden in Verbindung setzen und es dadurch zu einem wirksamen Hauptvertrag (Miet-/Kaufvertrag) kommt, haften für unsere Courtage in voller Höhe.
5. Provision: Die Provision ist verdient und fällig, sobald ein rechtswirksamer Hauptvertrag (Miet/Kaufvertrag) zustande gekommen ist. Die Provision ist jeweils vom Verkäufer und Käufer zu zahlen. Sie beträgt für beide Parteien jeweils 3,57 % (inkl. MwSt.) des beurkundeten Kaufpreises.
6. Vollmacht: Die Firma Hansen & Hansen Immobilien Kontor erhält von dem Auftraggeber die Vollmacht, alle relevanten Daten für eine erfolgreiche Vermarktung nach Maßnahmen der gesetzlichen Regelung zu verarbeiten.
7. Datenschutz: Der Verkäufer, Käufer oder Interessent erklärt sich ausdrücklich damit einverstanden, dass die Firma Hansen&Hansen Immobilien Kontor GbR, Fuhlsbüttler Straße 682a, 22337 Hamburg, zur Erfüllung Ihrer Verpflichtungen befugt ist, die notwendigen personenbezogenen Daten des Verkäufers, Käufers oder Interessenten nach Maßgabe der gesetzlichen Regelungen zu verarbeiten.
Lage
Diese Immobilie befindet sich in familienfreundlicher Lage, im beliebten Hamburg-Sasel.
Sasel liegt im Bezirk Wandsbek, im Regionalbereich Alstertal und verfügt über eine hervorragende Infrastruktur. Sämtliche Schulformen sowie Kindertagesstätten befinden sich direkt im Stadtteil. Mit mehreren Supermärkten sowie dem Alstertal-Einkaufs-Zentrum mit diversen Geschäften herrscht ein überdurchschnittliches Angebot an Einkaufsmöglichkeiten. Dienstleister, Handwerksunternehmen und Einzelhändler befinden sich zudem in der Nähe. Für kulinarische Ansprüche bietet Hamburg-Sasel mit mehreren Restaurants und Bars ebenfalls ein breit gefächertes Angebot. Eine Vielzahl von Allgemein- und Fachärzten sorgt für kurze Wege beim Arztbesuch.
Die Hamburger Innenstadt ist mit dem Auto in ca. 30 bis 45 Minuten, je nach Tageszeit, zu erreichen. In ca. 20 Minuten erreichen Sie die Autobahn A1, die Sie mit der Stadt Lübeck sowie der Ostsee verbindet bzw. in anderer Richtung mit der Hamburger-Innenstadt sowie dem weiteren Autobahnnetz.
Der nahe gelegene U-Bahnhof der Linie U1 „Volksdorf“ ist in ca. 8 Minuten mit dem Fahrrad erreicht. Von dort aus erreichen Sie bequem den Hamburger Hauptbahnhof bzw. Ahrensburg / Großhansdorf und Hamburg-Ohlstedt.
Das Sport- und Freizeitangebot lässt ebenfalls keine Wünsche offen. Neben Sportplätzen und gepflegten Parkanlagen bietet Hamburg-Sasel mit verschiedenen Sportvereinen in diversen Sportarten, viele Möglichkeiten seine Freizeit zu gestalten.
Zu Fuß sind Sie in ca. 10 Gehminuten mitten im Grünen, im Naturschutzgebiet "Volksdorfer Teichwiesen", welches Ihnen viele Fuß-, Rad- und Wanderwege bietet.
Wenn Sie die Immobilien-Karte anzeigen, übertragen Sie Daten an Google Maps (Datenschutzerklärung).
22393 Hamburg / Sasel, Deutschland (auf Google Maps ansehen)
FAQ's - Häufig gestellte Fragen
Sie haben noch weitere Fragen?
Auf jedes Ihrer Anliegen rund um Unternehmensberatung und Existenzgründung haben wir eine Antwort. Fragen Sie uns.















